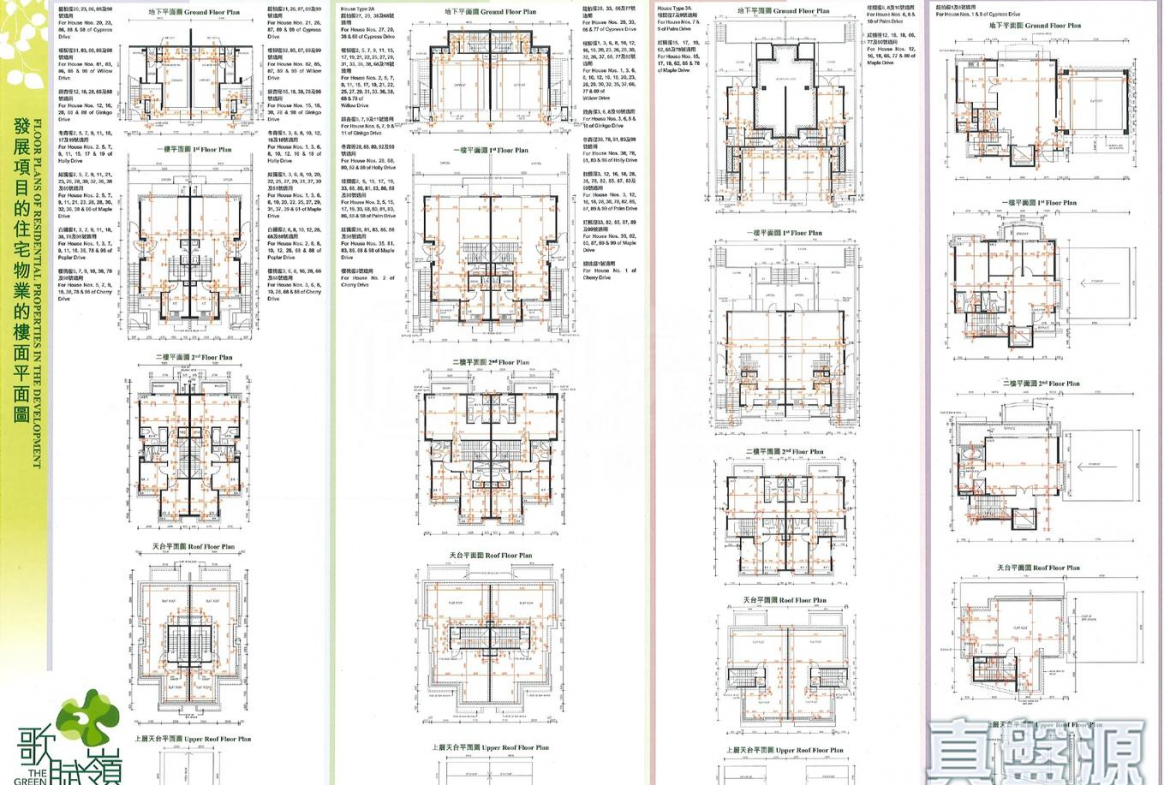
歌賦嶺
古洞南粉錦公路338號
售盤$1,480萬
@$11,255
樓齡13年
屋苑歌賦嶺
發展商中國海外
單位設施/ 特色室外泳池, 兒童嬉水池, 兒童遊樂場 / 兒童遊戲室, 遊樂場 / 遊戲室, 健身室, 按摩池, 桑拿浴室, 蒸氣浴室, 網球場, 卡拉OK室, 燒烤場, 音樂室, 閱讀室 / 溫習室, 舞蹈室, 柔道 / 瑜伽練習室
1315呎
實用面積
3
睡房
2
大廳
2
廁所
樓盤編號:CT73900738
物業編號:28NTS-999695
物業編號:28NTS-999695
廣告日期:09/04/2026
推薦代理
Fiona Li (S-331774)
利嘉閣地產有限公司 C-002504
立即預約諮詢
推薦代理
Fiona Li (S-331774)
利嘉閣地產有限公司 C-002504
立即預約諮詢
單位描述
歌賦嶺位處香港富豪傳統度假區,毗鄰「香港高爾夫球會(粉嶺會所)」、「賽馬會雙魚河鄉村會所」及「行政長官粉嶺別墅」,位置尊尚,景緻怡人。









